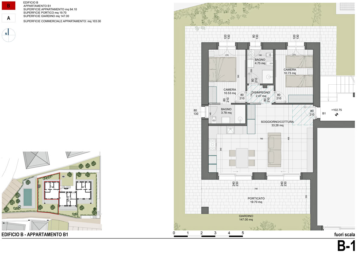
Appartamento n. B1 – Trilocale con doppi servizi 103 mq
Appartamento nuovo di 103 mq al piano terra composto da soggiorno-cottura, disimpegno, 2 camere e 2 bagni. Porticato coperto di oltre 19 mq e giardino privato di oltre 147 mq. Box auto e cantina al piano interrato.
Caratteristiche
Area Metri Quadri: 103
Bagni: 2
Camere da Letto: 2
Balconi: PORTICATO
Garage: SI
Piscina: SI
×
- Posizione: Ossuccio
