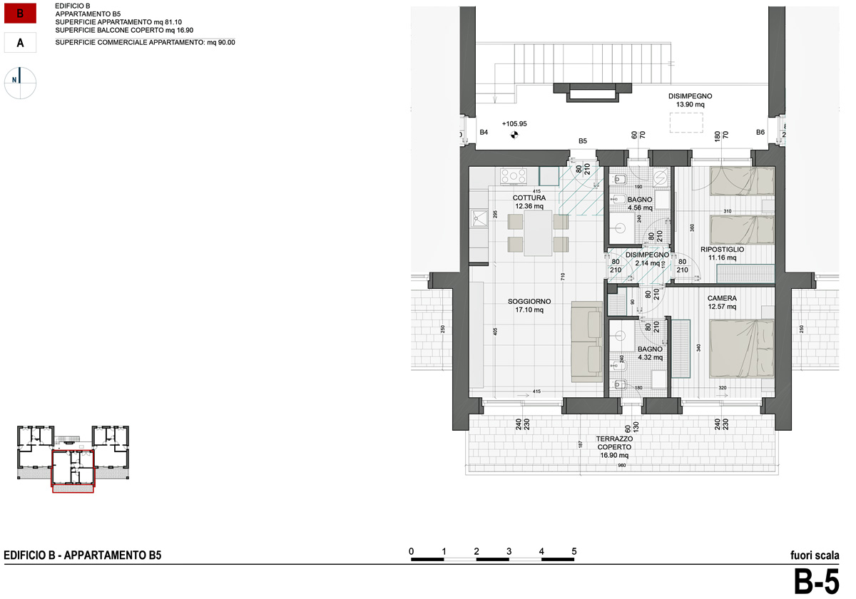
Appartamento n. B5 – Trilocale con doppi servizi 90 mq
Appartamento nuovo di 90 mq al piano primo composto da soggiorno-cottura, disimpegno, 2 bagni, camera e ripostiglio. Terrazzo coperto di oltre 16 mq. Box auto e cantina al piano interrato.
Caratteristiche
Area Metri Quadri: 90
Bagni: 2
Camere da Letto: 1
Balconi: SI
Garage: SI
Piscina: SI
×
- Posizione: Ossuccio
